Sochaczew, Jana Kochanowskiego
380 552,00 PLN
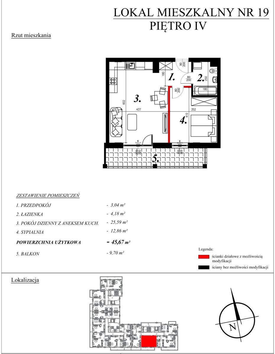
Mieszkanie na sprzedaż , 40,27 m2
9 450,01 PLN /m2
Powierzchnia
40,27 m2
Liczba pokoi
2
Rok budowy
2028

Dane nieruchomości:

Numer oferty: 574294
Powierzchnia: 40,27 m2
Liczba pokoi: 2
Piętro/Pięter 1 z 5
Rok budowy: 2028
Balkon : 1
Cena za m2: 9 450,01 PLN
Cena: 380 552,00 PLN

Opis nieruchomości:

JDK Nieruchomości jako partner w sprzedaży przedstawia I etap nowoczesnych mieszkań na prestiżowym Osiedlu Kochanowskiego.

Lokalizacja: ul. Jana Kochanowskiego, Sochaczew ścisłe centrum miasta.

O mieszkaniach:
W ofercie posiadamy nowe mieszkania o powierzchni od 40,27m² do 46,26m², w skład których wchodzą:

  • pokój dzienny z aneksem kuchennym,
  • sypialnia,
  • łazienka,
  • przedpokój.
Mieszkania na parterze posiadają dodatkowo tarasy idealne miejsce na poranną kawę lub relaks po pracy.

Dodatkowe udogodnienia:

  • Miejsca postojowe: w hali garażowej 35 000 zł; naziemne 20 000 zł
  • komórki lokatorskie o powierzchni od 2,48 m² do 6,36 m² w cenie 3 000 zł/m²
O inwestycji: Osiedle Kochanowskiego to nowoczesny kompleks mieszkaniowy zaprojektowany z myślą o komforcie mieszkańców.

W I etapie inwestycji dostępnych będzie:

  • 72 mieszkania o powierzchni od 40,27 m² do 59,28 m²
  • 67 miejsc postojowych w hali garażowej
  • miejsca postojowe naziemne
  • 70 komórek lokatorskich
  • nowoczesne windy
  • prywatny dziedziniec
To pierwsza tego typu inwestycja w Sochaczewie wyróżniająca się zarówno lokalizacją, jak i jakością wykonania.

Lokalizacja i otoczenie Osiedle położone jest w śródmieściu Sochaczewa, z pełnym dostępem do infrastruktury:
sklepy, szkoły, przedszkola, urzędy i przystanki komunikacji miejskiej wszystko w zasięgu spaceru
bliskość terenów zielonych idealnych na spacer lub aktywny wypoczynek

Dlaczego warto?

  • Atrakcyjna lokalizacja w centrum miasta
  • Różnorodność metraży i układów
  • Wysoka jakość materiałów i wykonania
  • Nowoczesna architektura
  • Możliwość indywidualnej aranżacji wnętrz
Zapraszam do kontaktu! chętnie odpowiem na pytania i umówię się na prezentację.

Zakup bez prowizji!
Kupując tę nieruchomość z JDK Nieruchomości, nie ponosisz kosztów prowizji nasze wynagrodzenie pokrywa sprzedający.

Uwaga: Niniejsze ogłoszenie ma charakter informacyjny i nie stanowi oferty w rozumieniu Kodeksu cywilnego. Informacje podane w opisie pochodzą od właściciela nieruchomości i mogą ulec zmianie.

Zakup bez podatku 2%PCC, bez prowizji, bez ukrytych kosztów - w pełni bezpiecznie w oparciu o Ustawę Deweloperską.

Więcej informacji o ofercie oraz ceny wszystkich mieszkań znaleźć można na stronie inwestycji Osiedla Kochanowskiego

Skontaktuj się z agentem :
Agata Bogiel

Telefon : 889-888-366

jdk.biuro@gmail.com


Lokalizacja: